WORK
about
contact
보-기 ¹
boki
WORK
about
contact
보-기 ¹
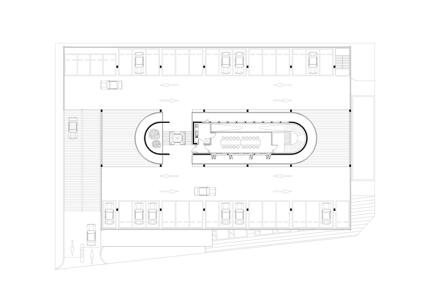
가흥신도시 주차타워
가흥신도시 주차타워 건립사업 | 2020
설계 보기건축사사무소
위치 경상북도 영주시
용도 주차장, 노유자시설, 제1종근린생활시설
연면적 4,770㎡
층수 지하1층 / 지상4층
구조 목구조 / 철근콘크리트구조
진행 공모참가작
↑
Back to Top